Dichiarazione di accessibilità
×
Corsi a partire da $0.99USD
Inizia a creare
03ore
•
04min
•
04sec
03h : 04m : 04s
Corsi a partire da $0.99USD
DOMESTIKA Vedi navigazione
  • Corsi
    • Tutti i corsi →
    • Illustrazione
    • Craft
    • Marketing & Business
    • Fotografia e Video
    • Design
    • 3D e Animazione
    • Architettura e Spazi
    • Moda
    • Scrittura
    • Web & App Design
    • Calligrafia e Tipografia
    • Musica e Audio
    • Cucina
    • Intelligenza Artificiale
    • Benessere
    • Come diventare
    • Corsi guidati
    • Approfondito New
    • Specializzazioni
    • Domestika Basics
    • Corsi nuovi
    • Corsi con migliori valutazioni
    • Corsi più cercati
    • Corsi gratis con Domestika Plus logo
    • Gift card
    • Attestati Plus
  • Progetti
  • Plus
    • Blog
    • Scuole
    • Assistenza
    Le donne dimenticate dietro l'arte rinascimentale
    Ultimo post del blog

    Le donne dimenticate dietro l'arte rinascimentale

    Scoprite le donne artiste del Rinascimento che hanno infranto le barriere e lasciato il segno nella storia dell'arte, pur essendo state rese invisibili. Le donne dimenticate del Rinascimento: le artiste che hanno fatto la storia. Il Rinascimento è ricordato come una delle epoche più brillanti della storia dell'arte. Fu l'epoca in cui bellezza, scienza e pensiero umanistico si unirono per dare forma a un'eredità culturale senza precedenti. Tuttavia, dietro i grandi nomi che tutti conosciamo - Leonardo, Michelangelo, Raffaello - si nasconde una storia meno raccontata: quella delle donne artiste che fecero anch'esse parte di quello splendore, ma furono relegate nell'oblio.[/b Questo articolo cerca di salvare i loro nomi, le loro storie e i loro contributi, restituendo loro il posto che meritano nella storia dell'arte. Perché senza di loro, il Rinascimento sarebbe stato incompleto.[/b Il contesto del Rinascimento e le barriere di genere. Durante il XV e il XVI secolo, l'accesso alla formazione artistica era profondamente sessuato: alle donne era vietato studiare anatomia, frequentare le accademie o firmare contratti come insegnanti. La loro partecipazione era limitata alle botteghe di famiglia, dove apprendevano le tecniche di pittura o scultura all'ombra dei padri o dei fratelli. Le corporazioni e i mecenati, figure chiave per il riconoscimento professionale, erano dominati dagli uomini, limitando le opportunità per le donne artiste. Nonostante ciò, molte riuscirono a distinguersi grazie al loro talento e alla loro determinazione, sfidando gli stereotipi del loro tempo.

  • Corsi
    • Tutti i corsi
    • Illustrazione
    • Craft
    • Marketing & Business
    • Fotografia e Video
    • Design
    • 3D e Animazione
    • Architettura e Spazi
    • Moda
    • Scrittura
    • Web & App Design
    • Calligrafia e Tipografia
    • Musica e Audio
    • Cucina
    • Intelligenza Artificiale
    • Benessere
    • Come diventare
  • Progetti
  • Plus
  • Blog
  • Entra gratuitamente
  • Accedi
  • Accedi
  • Entra gratuitamente
  • Comunità
  • Concorsi
  • Progetti
  • Creativi
Aggiungi nuovo progetto

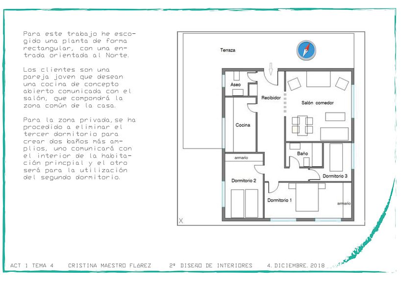
TRABAJO DE INICIALIZACIÓN DE PROYECTO, ESQUEMAS BÁSICOS. De lo general a lo particular. (CC)
TRABAJO DE INICIALIZACIÓN DE PROYECTO, ESQUEMAS BÁSICOS. De lo general a lo particular. (CC)

di Cristina Maestro @cristinaa_mfg

  • 134
  • 1
  • 0
TRABAJO DE INICIALIZACIÓN DE PROYECTO, ESQUEMAS BÁSICOS. De lo general a lo particular. (CC) 0
TRABAJO DE INICIALIZACIÓN DE PROYECTO, ESQUEMAS BÁSICOS. De lo general a lo particular. (CC) 1
TRABAJO DE INICIALIZACIÓN DE PROYECTO, ESQUEMAS BÁSICOS. De lo general a lo particular. (CC) 1
Mi piace
  • arianna burgos
Mi piace
FacebookTwitterPinterest
Salva nei Preferiti

Altri progetti di cristinaa_mfg

  • aula de profesores - asignatura 1º de proyectos.. Un progetto di Animazione 2D, Architettura d'interni, Design e Interior design di Cristina Maestro - 31.01.2019
    • 0
    • 0
    • 126

    aula de profesores - asignatura 1º de proyectos.

    cristinaa_mfg

  • Motivo de Repetición a 3 colores (CC). Un progetto di Disegno, Disegno a matita, Disegno artistico, Interior design e Pattern design di Cristina Maestro - 11.01.2019
    • 0
    • 0
    • 141

    Motivo de Repetición a 3 colores (CC)

    cristinaa_mfg

  • Proyecto fin de curso, Asignatura: Proyectos. 1º de Carrera.. Un progetto di Architettura d'interni, Design, Lighting design, Interior design, Illustrazione digitale e Infografica di Cristina Maestro - 11.01.2019
    • 1
    • 0
    • 155

    Proyecto fin de curso, Asignatura: Proyectos. 1º de Carrera.

    cristinaa_mfg

  • FOTOGRAFÍA DE PRODUCTO.. Un progetto di Architettura, Lighting design, Interior design, Fotografia di prodotti e Postproduzione fotografica di Cristina Maestro - 11.01.2019
    • 1
    • 0
    • 120

    FOTOGRAFÍA DE PRODUCTO.

    cristinaa_mfg

Vedi il portfolio di cristinaa_mfg
0 commenti

Accedi o iscriviti gratuitamente per commentare

Accedi Entra gratuitamente
Un progetto di
Cristina Maestro cristinaa_mfg
In Domestika da ottobre 2018
Segui
Messaggio
Dettagli
  • TRABAJO DE INICIALIZACIÓN DE PROYECTO, ESQUEMAS BÁSICOS. De lo general a lo particular. (CC)
Aree
  • Architettura d'interni
  • Design
  • Disegno
  • Gestione progetti di design
  • Interior design
Software
  • Adobe Illustrator
  • AutoCAD
Mi piace
Salva nei Preferiti

Corsi di Domestika

Categorie

  • Corsi di Illustrazione
  • Corsi di Craft
  • Corsi di Marketing & Business
  • Corsi di Fotografia e Video
  • Corsi di Design
  • Corsi di 3D e Animazione
  • Corsi di Architettura e Spazi
  • Corsi di Moda
  • Corsi di Scrittura
  • Corsi di Web & App Design
  • Corsi di Calligrafia e Tipografia
  • Corsi di Musica e Audio
  • Corsi di Cucina
  • Corsi di Intelligenza Artificiale
  • Corsi di Benessere
  • Corsi di Come diventare

Aree

  • Corsi di Illustrazione tradizionale
  • Corsi di Illustrazione digitale
  • Corsi di Disegno
  • Corsi di Artigianato
  • Corsi di Graphic design
  • Corsi di Belle arti
  • Corsi di Design
  • Corsi di Intelligenza Artificiale
  • Corsi di SEO
  • Corsi di Programmazione
  • Corsi di Marketing digitale
  • Corsi di Uncinetto
  • Corsi di Amigurumi

Software

  • Corsi di Adobe Photoshop
  • Corsi di Adobe Illustrator
  • Corsi di Procreate
  • Corsi di Cinema 4D
  • Corsi di Adobe Premiere
  • Corsi di Blender
  • Corsi di Figma

Liste

  • Corsi nuovi
  • Corsi con migliori valutazioni
  • Corsi più cercati
  • Corsi in promozione

Scarica l'app di Domestika

  • Apple Store
  • Google Play

Sezioni

  • Corsi
  • Progetti
  • Lavoro
  • Creativi
  • Scuole
  • Domestika Podcasts
  • Domestika Plus

Informazioni

  • Domestika
  • Contattaci
  • Blog
  • Assistenza
  • Affiliati
  • Enti e imprese
  • Insegnanti

Lingua

  • Español
  • English
  • Português
  • Deutsch
  • Français
  • Italiano
  • Polski
  • Nederlands
  • Türkçe

Seguici

  • Segui domestika
  • © Domestika 2025
  • Condizioni d'uso
  • Informativa sulla privacy
  • Informativa sui cookie
  • Dichiarazione di accessibilità