Projet du cours
My project (Interior Design from Start to Finish)
My project (Interior Design from Start to Finish)
par Haruka Sasada @haruchan2003
- 230
- 1
- 2







2 commentaires
Bonjour @haruchan2003 !
Merci d'avoir partagé votre projet final.
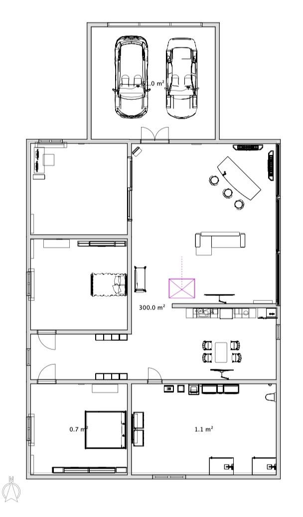
La disposition au sol n'a pas l'air mal mais peut-être y a-t-il quelque chose qui ne va pas avec la proportion des meubles.
Soit l'espace est très grand, soit le mobilier choisi est un peu petit...
Peut-être que si vous me donniez les dimensions et m'expliquiez la séance d'information, je pourrais l'évaluer plus en détail.
Merci et salutations!
Anne
J'en profite pour vous laisser mon cours au cas où vous voudriez approfondir les questions sur le bien-être et la proportion de mobilier, il y a un chapitre assez étoffé :
https://www.domestika.org/es/courses/2823-diseno-de-espacios-saludables-bienestar-y-confort/anagarcialopez?ttag=anagarcialopez
Salutations.
Connectez-vous ou inscrivez-vous gratuitement pour commenter