Kurs projesi
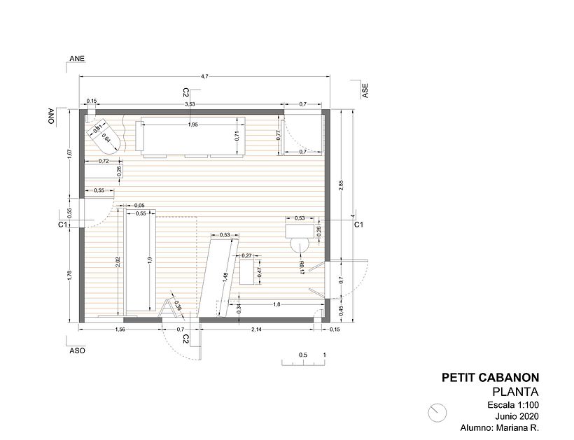
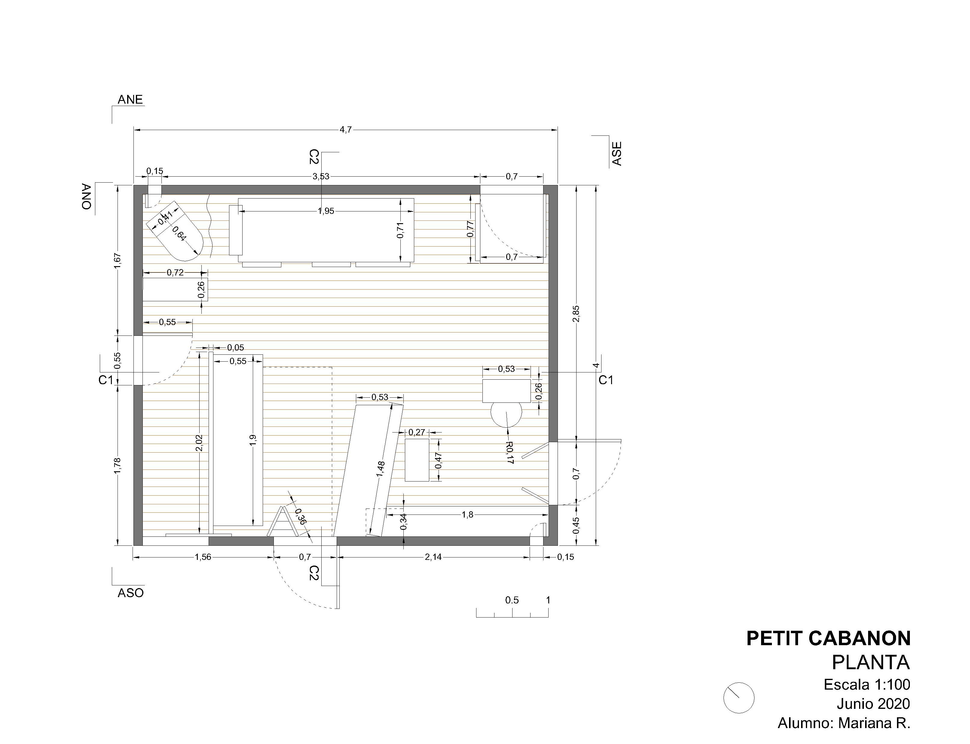
Mi Proyecto del curso: Introducción al dibujo arquitectónico en AutoCAD
Mi Proyecto del curso: Introducción al dibujo arquitectónico en AutoCAD
ile Mariana Reyna @mariana_r86
- 354
- 5
- 1
1 yorum
Hi Mariana,
Your project is excellently drawn, congratulations!
Well defined, good use of hatches and layer colors, good detail in the inner year. Everything correct and precise.
If you liked the course, leave us a comment in Evaluation;)
Good luck in the future with Autocad!
Yorum yapmak için Ücretsiz olarak giriş yapın veya katılın