Mi Proyecto del curso: Diseño y reforma de vivienda personal
Mi Proyecto del curso: Diseño y reforma de vivienda personal
de Agostina Massarini @agosmassarini
- 1,347
- 5
- 1
Mi proyecto final es la reforma de nuestra primera vivienda que acabamos de comprar. Si bien podría hacerle muchas reformas, nuestro presupuesto es limitado y entonces cambiaremos lo justo y necesario.
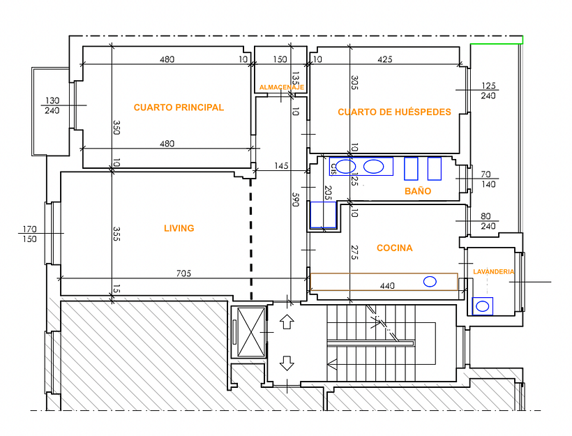
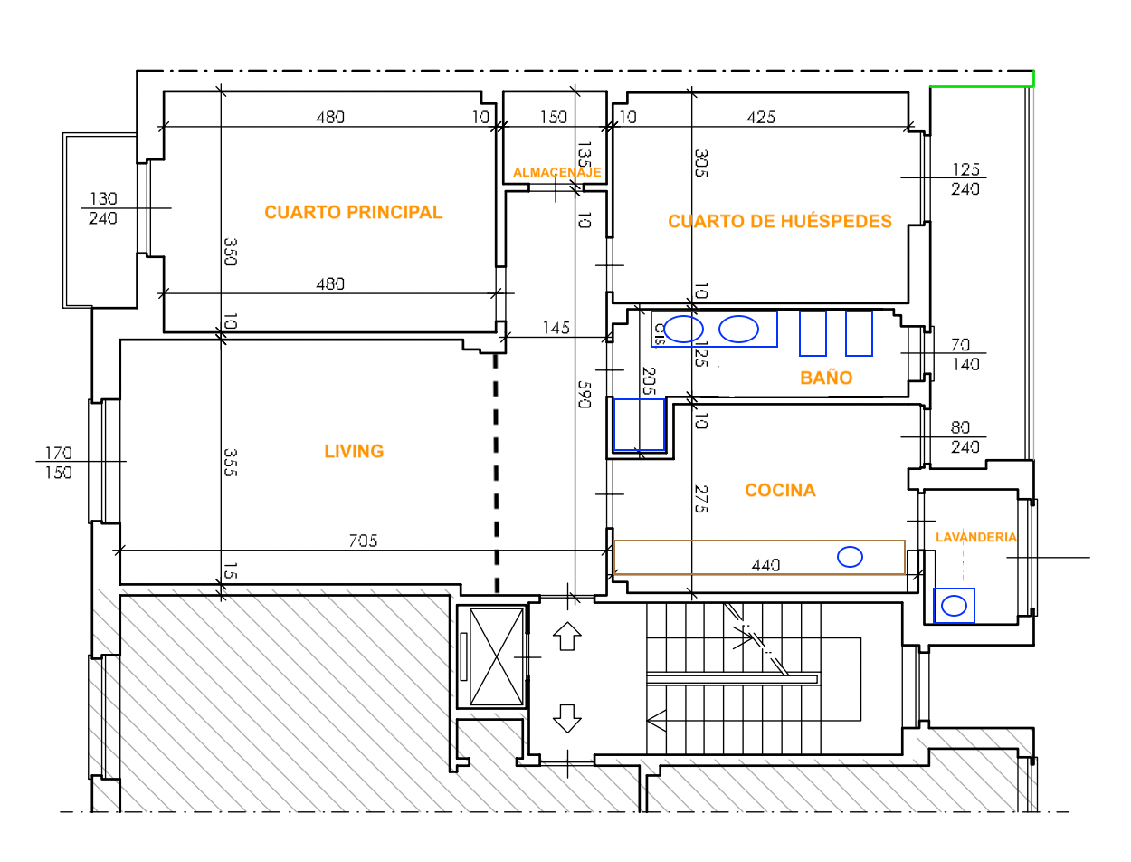
La distribución de la casa se mantendrá como está pero el único cuarto que aún nos hace dudar sobre su disposición es el baño, tenemos varias opciones que mostraré abajo.


En esta primera opción lo que hicimos fue deshacernos del cubo de la ducha para que esa parte volviera a formar parte de la cocina. De esta manera reordenamos el baño, la ducha se trasladó al lado de la ventana y luego conservamos un lavamanos, videt y WC. Esta opción nos permite ganar más espacio de almacenaje en la cocina – para mi la cocina es una de las partes más importantes de la casa porque cocinar es mi pasión y necesito mucho espacio para todos mis electrodomésticos.



En esta segunda opción, decidimos dejar todo como estaba, con la ducha en el cubo donde se encuentra actualmente.
Esta opción nos da un baño un poco más espacioso, pero nos quita lugar de almacenamiento en la cocina. Además, esta opción creemos será más económica que la otra ya que no tendremos que mover equipos del baño ni derribar paredes. La pregunta es ¿Qué tanto más caro nos puede costar la otra opción? De no ser mucha la diferencia creo que iremos por la primera opción.


La puerta del baño actualmente da sobre el living, cambiarla de lugar sería demasiado trabajoso entonces optamos por crear una especie de pared-librería que esconda un poco la puerta del baño.
El color de la pared verde en este diseño salió muy clara pero sería más oscura.



1 comentário
Em primeiro lugar, parabéns pelo projeto de sua casa, você fez um ótimo trabalho!
Quanto às diferentes opções de distribuição de banheiros, a primeira parece muito bem-sucedida. Ao colocar o chuveiro no final da banheira, que é muito longo, dá-se espaço e consegue-se um duche mais confortável (mais longo e talvez também possa ser mais largo). Você poderia até mesmo dispensar o bidê para ganhar espaço na pia. Em contraponto, certamente esta ação requer um maior investimento financeiro. Nosso conselho é que você entre em contato com uma construtora local de confiança que possa fazer um orçamento para isso e, assim, ser capaz de decidir se vale ou não a pena enfrentar essa pequena reforma.
O mobiliário de corredor é uma boa ideia para ganhar privacidade na zona dos sofás, e também achamos bonito o design que nos propõe: a parte inferior fechada e a parte superior com as prateleiras abertas. Outra alternativa para ocultar a porta do banheiro seria substituí-la por uma porta invisível sem moldura, da mesma cor da parede.
Mais uma vez, parabéns pelo seu projeto. Tanto a gama de materiais como os móveis estão em harmonia e respeitam o moodboard do campo, tornando todo o conjunto muito coerente.
Faça login ou cadastre-se Gratuitamente para comentar